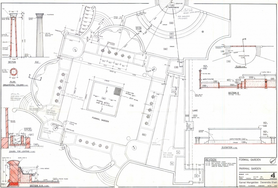
Development of Parimal Garden
; Public Garden; Ahmedabad; 1998-00Structural Design: Devendra Shah; Landscape Design: Prem Bhojnagarwala; Garden Folly: Arjun Mangaldas
This was the second adopted Municipal public garden, after Law Garden, that we got to design for another business house – Torrent. It was pointed out by our clients that at Law Garden the entire garden is flat and visible from most places- there are no surprises, no hidden places. We tried to make this garden as different as possible – there are hillocks, woods, large lake, and constructed spaces including a small amphitheatre.
